コンパクトながらにいい感じ!無駄のない間取りがGOOD!【鶴見区東寺尾3丁目新築戸建】

4,780万円

神奈川県横浜市鶴見区東寺尾3丁目

京急本線「生麦」駅徒歩19分

横浜線「大口」駅徒歩22分

価格
4,780万円
間取り/建物面積
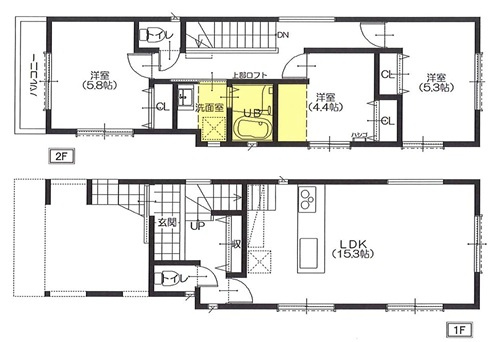
3LDK/90.13㎡
所在地
神奈川県横浜市鶴見区東寺尾3丁目
築年
2025年12月(新築)
駐車
交通

京急本線生麦」駅 徒歩19分

横浜線大口」駅 徒歩22分

コンパクトながらにいい感じ!無駄のない間取りがGOOD!【鶴見区東寺尾3丁目新築戸建】の基本情報

物件名
コンパクトながらにいい感じ!無駄のない間取りがGOOD!【鶴見区東寺尾3丁目新築戸建】
価格
4,780万円
建物面積
90.13㎡
土地面積
22.35坪(73.91㎡)
築年月
2025年12月(新築)
総戸数
-
所在地
神奈川県横浜市鶴見区東寺尾3丁目
交通

京急本線生麦」駅 徒歩19分

横浜線大口」駅 徒歩22分

コンパクトながらにいい感じ!無駄のない間取りがGOOD!【鶴見区東寺尾3丁目新築戸建】の詳細情報

設備条件
  • 閑静な住宅地
  • 駐輪場
  • バイク置場あり
設備(その他)
    -
駐車場/月額
有/0円
土地権利
所有権
国土法届出
不要
用途地域
第二種中高層住居専用
取引態様
仲介
引渡し
即時
備考
新築ならではの「新しさ」がとても魅力です。木の温もりも感じることのできる、2025年12月築の物件となります。築2年以内の物件ですので、外観もキレイです。一生に一度のマイホーム探しは、ぜひ新築戸建てで。横浜市鶴見区についてお問い合わせいただければ、地域情報に詳しい当社スタッフが対応いたします。もちろん不動産についてもご連絡くださいませ。

コンパクトながらにいい感じ!無駄のない間取りがGOOD!【鶴見区東寺尾3丁目新築戸建】のコメント(おすすめポイント)

こちらは清潔感のある新築戸建て物件です。ニーズのあるピカピカの新築物件となっています。築2年以内の物件ですので、外観もキレイです。こちらの物件は令和7年12月築の物件です。不動産の購入は、人生の中でも大きなターニングポイントです。後悔の無いよう当社スタッフが全力でサポートするので、お気軽にお問合せ下さい。

コンパクトながらにいい感じ!無駄のない間取りがGOOD!【鶴見区東寺尾3丁目新築戸建】で募集中の物件

  1. 27.26坪 (90.13㎡)

    4,780万円(213.87万円/坪)

周辺施設

  • クリエイトSD(エス・ディー) 横浜東寺尾店の画像

    ドラッグストア

    クリエイトSD(エス・ディー) 横浜東寺尾店

    204m(3分)

  • 横浜東寺尾一郵便局の画像

    郵便局

    横浜東寺尾一郵便局

    259m(4分)

  • セブンイレブン 横浜鶴見東寺尾3丁目店の画像

    コンビニエンスストア

    セブンイレブン 横浜鶴見東寺尾3丁目店

    278m(4分)

  • ローソン 東寺尾一丁目店の画像

    コンビニエンスストア

    ローソン 東寺尾一丁目店

    280m(4分)

  • 東寺尾三丁目公園の画像

    公園

    東寺尾三丁目公園

    394m(5分)

  • まいばすけっと 西寺尾3丁目店の画像

    スーパー

    まいばすけっと 西寺尾3丁目店

    433m(6分)

  • 東寺尾どろんこ保育園の画像

    保育園

    東寺尾どろんこ保育園

    438m(6分)

  • 西寺尾第五公園の画像

    公園

    西寺尾第五公園

    473m(6分)

  • 横浜商科大学図書館の画像

    図書館

    横浜商科大学図書館

    480m(6分)

  • 生活クラブ 東寺尾デポーの画像

    スーパー

    生活クラブ 東寺尾デポー

    546m(7分)

  • 荒立公園の画像

    公園

    荒立公園

    590m(8分)

  • 神之木クリニックの画像

    内科

    神之木クリニック

    600m(8分)

  • 飯山医院 病児保育室ママンプールの画像

    小児科

    飯山医院 病児保育室ママンプール

    635m(8分)

  • ふれあい鶴見ホスピタルの画像

    総合病院

    ふれあい鶴見ホスピタル

    648m(9分)

  • 西寺尾保育園の画像

    保育園

    西寺尾保育園

    659m(9分)

  • 飯山医院の画像

    小児科

    飯山医院

    706m(9分)

  • サンアイ薬局東寺尾店の画像

    ドラッグストア

    サンアイ薬局東寺尾店

    715m(9分)

  • 三島耳鼻咽喉科の画像

    耳鼻科

    三島耳鼻咽喉科

    955m(12分)

  • 横浜市立寺尾小学校の画像

    小学校

    横浜市立寺尾小学校

    1001m(13分)

  • sanwa横浜鶴見店の画像

    スーパー

    sanwa横浜鶴見店

    1026m(13分)

近隣の物件

  1. 横浜市鶴見区北寺尾7丁目

    4LDK (110.63㎡)

    4,680万円

  2. 横浜市鶴見区北寺尾6丁目

    3LDK (71.04㎡)

    3,780万円

コンパクトながらにいい感じ!無駄のない間取りがGOOD!【鶴見区東寺尾3丁目新築戸建】

お気軽にお問い合わせください

無料お問い合わせ

有限会社津田商会

045-331-3335

10:00~18:00

(休:水曜日・木曜日)