自宅で温泉三昧!ルーバルで整い三昧!今夜のご飯はすしざんまい!な、『グランシティ横濱保土ヶ谷』リフォーム

3,299万円

神奈川県横浜市保土ケ谷区法泉3丁目14-1

横須賀線「保土ケ谷」駅バス10分「法泉下」停歩3分

価格
3,299万円
間取り/面積
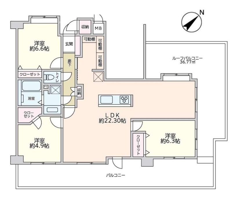
3LDK/95.15㎡
所在地
神奈川県横浜市保土ケ谷区法泉3丁目14-1
築年
1998年12月(築27年)
駐車
空無
交通

横須賀線保土ケ谷」駅 バス10分 「法泉下」 停歩3分

自宅で温泉三昧!ルーバルで整い三昧!今夜のご飯はすしざんまい!な、『グランシティ横濱保土ヶ谷』リフォームの基本情報

物件名
自宅で温泉三昧!ルーバルで整い三昧!今夜のご飯はすしざんまい!な、『グランシティ横濱保土ヶ谷』リフォーム
価格
3,299万円
築年月
1998年12月(築27年)
総戸数
-
所在地
神奈川県横浜市保土ケ谷区法泉3丁目14-1
交通

横須賀線保土ケ谷」駅 バス10分 「法泉下」 停歩3分

自宅で温泉三昧!ルーバルで整い三昧!今夜のご飯はすしざんまい!な、『グランシティ横濱保土ヶ谷』リフォームの詳細情報

設備条件
  • 駐輪場
  • バイク置場あり
  • 外観タイル張り
  • オートロック
  • 宅配ボックス
  • 防犯カメラ
設備(その他)
    -
駐車場/月額
空無/17,000円
土地権利
所有権
国土法届出
不要
用途地域
第一種中高層住居専用
戸数
- / 85戸
管理形態
管理会社に全部委託
管理員の勤務形態
日勤
管理会社
-
取引態様
仲介
引渡し
即時
備考
耐火構造なので避難するまでの間は燃え落ちる事がありません。この物件は快適な室内環境が魅力の中古マンションとなっています。デザイナーズは、外観や内装にデザインを求める方にオススメです。メンテナンスのしやすさから考えると決して高くない外観タイル張りの物件。不動産のことで当社にご要望やご不明な点などがあれば、メール若しくはお電話でご連絡ください。経験豊富なプロのスタッフがしっかりとお応え致します。

自宅で温泉三昧!ルーバルで整い三昧!今夜のご飯はすしざんまい!な、『グランシティ横濱保土ヶ谷』リフォームのコメント(おすすめポイント)

他の建築と比べてもお手入れが簡単な外観タイル張りの物件です。中古マンションなら、物件の購入もスムーズです。エレベーター2台付きのマンションなので、楽に上り下りできます。耐火構造は火災の規模によっては一部を修繕すれば再利用できます。不動産のご購入を検討しているが不動産の知識がなくて不安だと思う方でも、経験豊富な当社スタッフがしっかりとサポートするので安心してご依頼下さい。

自宅で温泉三昧!ルーバルで整い三昧!今夜のご飯はすしざんまい!な、『グランシティ横濱保土ヶ谷』リフォームで募集中の物件

  1. 710

    28.78坪 (95.15㎡)

    3,299万円(114.63万円/坪)

近隣の物件

  1. 横浜市保土ケ谷区今井町

    3LDK (82.47㎡)

    2,890万円

  2. 横浜市保土ケ谷区上菅田町

    3LDK (57.54㎡)

    1,890万円

  3. 横浜市保土ケ谷区保土ケ谷町1丁目

    2LDK (51.09㎡)

    2,990万円

  4. 横浜市保土ケ谷区和田2丁目

    3LDK (64.11㎡)

    3,890万円

自宅で温泉三昧!ルーバルで整い三昧!今夜のご飯はすしざんまい!な、『グランシティ横濱保土ヶ谷』リフォーム

お気軽にお問い合わせください

無料お問い合わせ

有限会社津田商会

045-331-3335

10:00~18:00

(休:水曜日・木曜日)