始発駅の駅チカという利便性なら借地という考え方もアリなのでは??【金沢区谷津町新築戸建】

3,880万円

神奈川県横浜市金沢区谷津町

京急本線「金沢文庫」駅徒歩6分

金沢シーサイドライン「海の公園柴口」駅徒歩24分

京急本線「金沢八景」駅徒歩24分

価格
3,880万円
間取り/建物面積
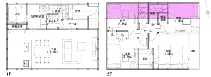
3LDK+S(納戸)/91.91㎡
所在地
神奈川県横浜市金沢区谷津町
築年
2025年6月(新築)
駐車
交通

京急本線金沢文庫」駅 徒歩6分

金沢シーサイドライン海の公園柴口」駅 徒歩24分

京急本線金沢八景」駅 徒歩24分

始発駅の駅チカという利便性なら借地という考え方もアリなのでは??【金沢区谷津町新築戸建】の基本情報

物件名
始発駅の駅チカという利便性なら借地という考え方もアリなのでは??【金沢区谷津町新築戸建】
価格
3,880万円
建物面積
91.91㎡
土地面積
34.17坪(112.98㎡)
築年月
2025年6月(新築)
総戸数
-
所在地
神奈川県横浜市金沢区谷津町
交通

京急本線金沢文庫」駅 徒歩6分

金沢シーサイドライン海の公園柴口」駅 徒歩24分

京急本線金沢八景」駅 徒歩24分

始発駅の駅チカという利便性なら借地という考え方もアリなのでは??【金沢区谷津町新築戸建】の詳細情報

設備条件
  • 閑静な住宅地
  • 駐輪場
  • バイク置場あり
  • 駐車2台可
設備(その他)
    -
駐車場/月額
有/0円
土地権利
旧法地上権
国土法届出
不要
用途地域
第一種低層住居専用
取引態様
仲介
引渡し
相談
備考
歩いて徒歩7分の場所にさなえ薬局 金沢文庫店もあります。新築の戸建て物件です。利便性の高い設備も充実した、高ニーズな令和7年6月築の物件です。好評の新築物件なので、おすすめです。一戸建て購入時の不安を、豊富なスタッフが解消いたします。横浜市金沢区の京急本線金沢文庫周辺でマイホームを求めるのであれば、お気軽にお問い合わせください。

始発駅の駅チカという利便性なら借地という考え方もアリなのでは??【金沢区谷津町新築戸建】のコメント(おすすめポイント)

家から487mのところに、薬や日用品を買うのに便利なさなえ薬局 金沢文庫店があります。コチラの物件は、新築の戸建て物件で設備も充実しています。新築ならではの「新しさ」がとても魅力です。築2年以内の物件ですので、外観もキレイです。不動産の購入は人生の中でも大きなお買い物だと言われています。そんな大きなお買い物で失敗しないためにも、購入をお考えの際は不動産のプロである当社スタッフにお任せください。

始発駅の駅チカという利便性なら借地という考え方もアリなのでは??【金沢区谷津町新築戸建】で募集中の物件

  1. 27.80坪 (91.91㎡)

    3,880万円(143.17万円/坪)

周辺施設

  • あおぞら谷津保育園の画像

    保育園

    あおぞら谷津保育園

    228m(3分)

  • 文庫じんクリニックの画像

    内科

    文庫じんクリニック

    397m(5分)

  • 京急キッズランド金沢文庫保育園の画像

    保育園

    京急キッズランド金沢文庫保育園

    398m(5分)

  • さなえ薬局 金沢文庫店の画像

    ドラッグストア

    さなえ薬局 金沢文庫店

    487m(7分)

  • 釜利谷緑地の画像

    公園

    釜利谷緑地

    754m(10分)

よく見られている物件

  1. 横浜市栄区桂台西1丁目

    4LDK (110.95㎡)

    5,780万円

  2. 横浜市鶴見区北寺尾7丁目

    4LDK (110.63㎡)

    4,680万円

  3. 横浜市港南区野庭町

    3LDK (82.62㎡)

    3,480万円

  4. 横浜市南区六ツ川4丁目

    4LDK (124.20㎡)

    6,490万円

始発駅の駅チカという利便性なら借地という考え方もアリなのでは??【金沢区谷津町新築戸建】

お気軽にお問い合わせください

無料お問い合わせ

有限会社津田商会

045-331-3335

10:00~18:00

(休:水曜日・木曜日)