電車好きにはたまらない!バルコニーから電車を見下ろせる【金沢区片吹新築戸建】

5,190万円

神奈川県横浜市金沢区片吹

京急本線「能見台」駅徒歩15分

京急本線「金沢文庫」駅徒歩16分

価格
5,190万円
間取り/建物面積
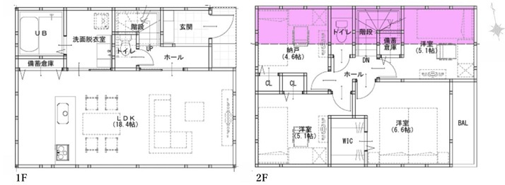
3LDK/97.16㎡
所在地
神奈川県横浜市金沢区片吹
築年
2026年2月(新築)
駐車
交通

京急本線能見台」駅 徒歩15分

京急本線金沢文庫」駅 徒歩16分

電車好きにはたまらない!バルコニーから電車を見下ろせる【金沢区片吹新築戸建】の基本情報

物件名
電車好きにはたまらない!バルコニーから電車を見下ろせる【金沢区片吹新築戸建】
価格
5,190万円
建物面積
97.16㎡
土地面積
36.52坪(120.76㎡)
築年月
2026年2月(新築)
総戸数
-
所在地
神奈川県横浜市金沢区片吹
交通

京急本線能見台」駅 徒歩15分

京急本線金沢文庫」駅 徒歩16分

電車好きにはたまらない!バルコニーから電車を見下ろせる【金沢区片吹新築戸建】の詳細情報

設備条件
  • 閑静な住宅地
  • 駐輪場
  • バイク置場あり
  • 駐車2台可
  • 宅配ボックス
設備(その他)
    -
駐車場/月額
有/0円
土地権利
所有権
国土法届出
不要
用途地域
第一種住居
取引態様
仲介
引渡し
即時
備考
電車好きにはたまらない!バルコニーから電車を見下ろせる【金沢区片吹新築戸建】:京急本線能見台駅にも近くて便利。徒歩16分の場所に横浜市立西柴小学校があります。こちらの物件は2026年2月築の物件です。駅から徒歩15分の物件です。不動産の購入は人生の中でも大きなお買い物だと言われています。そんな大きなお買い物で失敗しないためにも、購入をお考えの際は不動産のプロである当社スタッフにお任せください。

電車好きにはたまらない!バルコニーから電車を見下ろせる【金沢区片吹新築戸建】のコメント(おすすめポイント)

電車好きにはたまらない!バルコニーから電車を見下ろせる【金沢区片吹新築戸建】:京急本線能見台駅にも近くて便利。徒歩16分の場所に横浜市立西柴小学校があります。コチラの物件は、新築の戸建て物件で設備も充実しています。2026年2月築で地域にも馴染んだ物件でもあり、住環境も良好。京急本線能見台駅近くは過ごしやすく快適な住環境です。一戸建ての購入を検討されているなら、まずはお気軽にご連絡からお待ちしております。

電車好きにはたまらない!バルコニーから電車を見下ろせる【金沢区片吹新築戸建】で募集中の物件

  1. 29.39坪 (97.16㎡)

    5,190万円(176.59万円/坪)

周辺施設

  • 片吹緑地の画像

    公園

    片吹緑地

    570m(8分)

  • 西友 能見台店の画像

    スーパー

    西友 能見台店

    622m(8分)

  • 能見台東公園の画像

    公園

    能見台東公園

    652m(9分)

  • 横浜市立西柴中学校の画像

    中学校

    横浜市立西柴中学校

    689m(9分)

  • セブンイレブン 横浜片吹店の画像

    コンビニエンスストア

    セブンイレブン 横浜片吹店

    773m(10分)

  • アイン薬局 能見台店の画像

    ドラッグストア

    アイン薬局 能見台店

    778m(10分)

  • 西柴保育園の画像

    保育園

    西柴保育園

    805m(11分)

  • 茨木動物病院の画像

    動物病院

    茨木動物病院

    1065m(14分)

  • 横浜市立西柴小学校の画像

    小学校

    横浜市立西柴小学校

    1273m(16分)

近隣の物件

  1. 横浜市金沢区谷津町

    3SLDK (91.91㎡)

    3,880万円

よく見られている物件

  1. 鎌倉市台4丁目

    3LDK+S(納戸) (94.60㎡)

    3,780万円

  2. 横浜市港北区日吉7丁目

    2LDK+S(納戸) (82.42㎡)

    5,499万円

  3. 横浜市栄区桂台西1丁目

    4LDK (110.95㎡)

    5,680万円

  4. 横浜市戸塚区前田町

    4LDK (86.94㎡)

    3,780万円

電車好きにはたまらない!バルコニーから電車を見下ろせる【金沢区片吹新築戸建】

お気軽にお問い合わせください

無料お問い合わせ

有限会社津田商会

045-331-3335

10:00~18:00

(休:水曜日・木曜日)