閲覧数上位物件

POPULAR

  1. お布団派には朗報!現代のクローゼットではしまいにくいが、ココはユトリあるためイケちゃいます!廊下の面積が最低限で、その分リビングや部屋に使える!【クオス上星川】リノベーション

    No.

    中古マンション

    お布団派には朗報!現代のクローゼットではしまいにくいが、ココはユトリあるためイケちゃいます!廊下の面積が最低限で、その分リビングや部屋に使える!【クオス上星川】リノベーション

    4,250万円

    3LDK / 71.03㎡

    横浜市保土ケ谷区上星川3丁目

    相鉄本線「上星川」駅 徒歩9分

  2. 日吉が好きな方は日吉住所にコダワル。それって良いコトで、私、都内から引っ越した時に神奈川住所になるコト、不思議と残念な気持ちになりました、な、【リフォーム/港北区日吉7丁目中古戸建】

    5,499万円

    2LDK+S(納戸)

    82.42㎡

    No.

    中古一戸建

    日吉が好きな方は日吉住所にコダワル。それって良いコトで、私、都内から引っ越した時に神奈川住所になるコト、不思議と残念な気持ちになりました、な、【リフォーム/港北区日吉7丁目中古戸建】

    横浜市港北区日吉7丁目

  3. キタ━━━━(゚∀゚)━━━━!!ちょうど良いサイズのちょうど良い立地!な、『グレイス上星川』

    2,790万円

    2LDK

    59.16㎡

    No.

    中古マンション

    キタ━━━━(゚∀゚)━━━━!!ちょうど良いサイズのちょうど良い立地!な、『グレイス上星川』

    横浜市神奈川区羽沢南2丁目

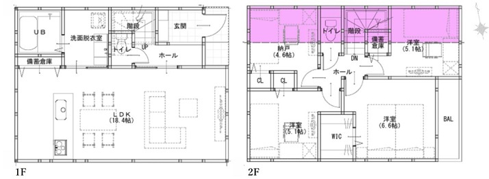
  4. 見て!クローゼットの中まで可愛いの、見えないところまで可愛い意識高めな【泉区下和泉2丁目新築戸建】

    3,990万円

    2LDK+S(納戸)

    92.74㎡

    No.

    新築一戸建

    見て!クローゼットの中まで可愛いの、見えないところまで可愛い意識高めな【泉区下和泉2丁目新築戸建】

    横浜市泉区下和泉2丁目

  5. お店の集中豪雨。同じお店が近くに2店舗???降り出した雨は止まらない、な、【リノベ/鶴見区大東町中古戸建】

    4,380万円

    2LDK+S(納戸)

    91.91㎡

    No.

    中古一戸建

    お店の集中豪雨。同じお店が近くに2店舗???降り出した雨は止まらない、な、【リノベ/鶴見区大東町中古戸建】

    横浜市鶴見区大東町

不動産のアレ?これ?ブログ

役には立たないが意識されるはず

もっと見る

電話でお問い合わせ

045-331-3335

10:00~18:00(水曜日・木曜日)

メールでお問い合わせ

お問い合わせフォーム

WEBで来店予約・相談予約

ご来店予約フォーム
  • 掲載物件数157
  • 公開物件数145
  • 本日の更新物件数0
  • 会員物件数0

お知らせ

当社からの発信情報はココで

more
お知らせ

2026GW休暇のお知らせです。

けたたましい花粉の時期も、この頃には収まっているでしょう。

そんな数か月先を夢見て、GW休暇のご案内を痒い目をこすりながら入力しています。


当社は、日々、マジでやる事多く休日も休日にならないケースも多い。

まぁ、人数少ないから仕方ないのですが、だったら人を入れれば?とおっしゃる方もいます。

その人件費、くれる?
当然に保険料や経費もくれる?

まして、当社で働ける方は、非常に稀でヘンタイだと思っています。

それは、何でも出来ないとダメだから、です。

仲介だけ出来てもフンッ!
管理だけ出来てもフンッ!

柔軟な脳内思考とコミュニケーション能力、突発性が異常です。


そんな何でも出来る精鋭たちを休ませるために、大型連休と言ったタイミングでは休ませる。

休暇明けでも対応できるものは、休暇中にはご対応出来ません。

ですが、契約前・中・後などの案件や、管理上など緊急と判断できるものにおいては関係なくご対応致します。


ココまで読んで頂けた方は、きっと、①通告や問題発生された方、②同業者、③興味持たれた方、④暇な方、でしょう。

ありがとうございます。


①通告や問題発生された方は、各担当者に直接ご連絡下さい。
担当が無い場合は、 kikuchi@tsuda-shoukai.co.jp まで取り急ぎご連絡下さい。
私から担当者に繋ぎます。
ただ、ご返答にお時間がかかる場合があります。
恐縮ですが、少しだけご辛抱頂ければ助かります。。。
事件事故などの場合は、先に警察や救急にご連絡後、落ち着いたらご連絡お願いします。
また、賃貸契約中の方で退去のご連絡など、1か月前通告等のガイドラインにそった通告においては、
休暇中だから連絡できなかったは、無効となってしまいます。
上記アドレスにメール頂き、確認出来た際は折返しのご連絡を以て、承諾できます。
もしくは、面倒でなければFAXであれば、届けば有効です。日付、物件名、お名前、内容を記載下さい。

②同業者の方は、担当者に直接ご連絡下さい。
物件確認は、レインズに掲載=ご紹介可能です。
申込有りなどの一歩進んだ状況は、レインズの詳細に記載します。
また、広告掲載については、マイソクをご覧ください。
ワンチャン、掲載許可もらえるかも!?でのご連絡、マジで止めて下さい。
余計に許可したくなくなります。
休暇中でも無断掲載のネット見回りは、第三者にて実施しています。
物件買います、何かありませんか?は、お電話やメールでは基本的には対応しておりません。
バンバン連絡来るので、申し訳ないです。知っている方から優先しちゃいます。

③興味持たれた方は、色々とHP内を徘徊してみて下さい。
当社は、ご覧の通り、ちょっとイカれてます。(もちろん、いい意味で、の意味です)
お取引して頂いた方や仲の良い業者さんは納得できると思います、この雰囲気と人柄。
不動産会社として同じニオイがする同業者と知り合いたいと思っています。
なかなかナイケドネ。
基本、不動産業界がキライなので、全部さらけ出してます。
ホント、舐めてますよ、この業界は。
まぁ、誰でも入れてすぐ辞めるのでしょうから、上も下もクsばかり。

④暇な方は、マジでネトフリやyoutube、外に遊びに行きましょう!
こんなところで時間無駄にする必要、マジでありませんよっ!
私もダラダラこの文章書いていますが、こんなコトに時間使っている場合ではないんです。
書類作らないといけないし、SNSやらなーいかんし、水の注文しないといけないし。
WBC台湾×韓国もそろそろ始まるし。


ってなワケで、本題です。

2026年5月2日(土)~7日(木)までお休みをいただきます。

5月1日(金)は18時まで。
5月8日(金)は10時から。

電話は基本繋がらないと思ってて下さい。

ただ、休暇中に一時的に出勤するスタッフがいた場合、出る可能性もありますが、
アイドルで有名になれるくらいの確率だと思います。

1日までフルで走り抜けますし、8日からまたフルで走ります。

ですので、この6日間は、羽伸ばします。


今年は、有給使うとまぁ、半月くらい休める方もいるんでしょうかねぇ。

なかなか現実的には難しいとも思いますが、皆様もぜひリフレッシュしてください。

GWなんかないわ!って方もいると思います。
なんだか、すみません。
プロ不動産日本代表として謝罪します。

長々となりましたが、良い休暇をお楽しみください。

お知らせ

2025年~年末年始のお知らせ~です


12月に入りましたが、まだまだ年の瀬間は無い今日この頃。


当社は、
2025年12月29日(月)~1月8日(木)まで、
お休みをいただきます。


前日は18時までの営業、明けの開始は10時からとなります。


この期間、固定電話の転送は致しません。
その為、事前に各担当者との連携をしていただき、何かあれば直接問い合わせ下さい。



緊急時においては、下記メールアドレスにご連絡をお願いします。

kikuchi@tsuda-shoukai.co.jp

・お問合せの際は、お名前・ご連絡先・お問合せ内容をご記載下さい。
・即時対応出来ない場合もありますが、出来るだけ早めの対応を心がけます。
・緊急性が無いと判断した内容においては、休暇明けのご連絡となります。


当社はスタッフ人数が少ないため、普段の定休日も含めて業務に追われている状態です。

その為、出来る限り長期休暇は仕事を考えずに楽しんでほしいと願う観点から、
ご返信においてはその担当の予定次第となる事を予めご承知おき下さい。


今年も1年間、大変お世話になりました。

年賀状の送付は控えさせていただいておりますので、こちらにてお礼申し上げます。

2026年。

皆様において、良い年になりますように。

お知らせ

2025年~夏季休暇のお知らせ~です

早いもので、2025年の夏が到来しましたね。

そんな中で、当社の夏季休暇が決まりましたので、お知らせ致します。


2025年8月6日(水)~14日(木)

が、お休みとなります。

前日は18時までの営業、明けの開始は10時からとなります。


この期間、固定電話を転送するか否かは、現在、検討中です。

その為、事前に各担当者との連携をしていただき、何かあれば直接問い合わせ下さい。



緊急時においては、下記メールアドレスにご連絡をお願いします。

kikuchi@tsuda-shoukai.co.jp

・お問合せの際は、お名前・ご連絡先・お問合せ内容をご記載下さい。
・即時対応出来ない場合もありますが、出来るだけ早めの対応を心がけます。
・緊急性が無いと判断した内容においては、休暇明けのご連絡となります。


当社はスタッフ人数が少ないため、普段の定休日も含めて業務に追われている状態です。

その為、出来る限り長期休暇は仕事を考えずに楽しんでほしいと願う観点から、
ご返信においてはその担当の予定次第となる事を予めご承知おき下さい。


皆様におかれましても、くれぐれもお身体にご自愛頂き、良き夏を楽しまれて下さい!!!

お知らせ

社外研修における定休日のお知らせ


2025年6月13日(金)~17日(火)におきまして、社外研修のため定休となります。


その前後は水・木の定休日となります事から、

6月11日(水)~6月19日(木)

において、定休となります。


御用のある方は6月10日(火)中に、ご連絡をお願い致します。

営業時間:10時~18時


定休中は固定電話はつながりにくい状況です。
担当者の携帯番号がお分かりの方は、出来るだけ、そちらに直接お問合せください。


また、お急ぎの方・緊急の方は、下記アドレスもご活用下さい。

kikuchi@tsuda-shoukai.co.jp

※即時対応出来ない可能性があります事を、予めご了承ください。
※お名前・ご連絡先・ご要件をお伝え下さい。内容によって担当者からご連絡致します。
※緊急的内容でないと判断される場合は、定休日明けにご連絡となる場合もあります。


恐縮ではございますが、ご理解の程、よろしくお願い申し上げます。

お知らせ

2025年 GW休暇のお知らせ

2025年の当社のGW休暇におかれまして、ご案内させていただきます。

5月3日(日)~6日(火)となりますが、7日(水)・8日(木)は定休日となるため、
5月3日(日)~8日(木)がお休みとなります。

つきましては、御用のある方は5月2日(金)中にご連絡をお願い致します。
当社営業時間:10時~18時

休暇中は固定電話はつながりませんので、
担当者の携帯番号がお分かりの方は、そちらに直接お問合せください。


また、お急ぎ等の方・緊急の方は、下記アドレスまでご連絡ください。

kikuchi@tsuda-shoukai.co.jp

※即時対応出来ない可能性があります事を予めご了承ください。
※お名前、ご連絡先、要件をお伝え下さい。内容によって担当者からご連絡致します。
※緊急的内容でないと判断される場合は、休暇明けにご連絡となる可能性もあります。


恐縮ではございますが、どうぞ、よろしくお願い申し上げます。

不動産の売却の画像

不動産の売却

お住まいの不動産の売却にお悩みの方、相続による不動産の売却にお悩みの方は、是非一度当社へご相談下さい。また、現在すでに出されている査定額が適正かどうか、本当に今売却をされた方がお得なのか、どんなご相談...

弊社について

ABOUT US

有限会社津田商会

有限会社津田商会

所在地
神奈川県横浜市保土ケ谷区仏向町92 
TEL
045-331-3335
FAX
045-332-3399
営業時間
10:00~18:00
定休日
水曜日・木曜日
免許番号
神奈川県知事 (9) 第17534号

弊社について

自称、横浜イチ気さくで真面目な不動産会社

当社は売買・管理を中心に賃貸や買取りも行う総合不動産会社です。
管理・賃貸を除き、この横浜から全国的に対応しております。

社名は正直、昭和感満載だと私たちも自負しつつも、その分の知識や経験はどこにも負けない自信アリ。

どんなことでも基本的には即答できる状況です。